G.CRAFTのこだわり施工完璧と喜ばれた階段の造作パーテーション
Category:
現場監督の工事ブログ
こんにちは。神戸でこだわりの注文住宅を建てるなら、G.CRAFT現場監督の水澤です。
今回は、神戸市東灘区にてリノベーション工事をさせていただいたM様邸の「階段格子造作」についてご紹介します。
この工事は、僕自身にとって非常に印象深く、リノベーションでご家族の希望を叶えるという意味でも大きな見せ場のひとつにでした。
お客様のご希望を丁寧にヒアリングし、図面に起こし、何度も打ち合わせを重ねながら、大工・家具職人と共に形にしていったプロジェクトです。
お客様のご要望「階段の壁に格子を」
今回のリノベーション工事のなかで、お客様から特に強くご希望いただいたのが、「階段に格子のような仕切りを設けたい」というものでした。
通常であれば階段には手すりや壁が設置されますが、M様からは「もっと開放的で、かつ安全性もあるデザインにしたい」とのご相談がありました。
具体的には、手すりの高さ以上に立ち上がる格子状の構造を造作し、空間を遮ることなく緩やかに仕切るという内容です。
このご要望をどう形にするかが、今回の工事の大きなポイントになりました。
設計〜製作まで何度も描き直した図面
お客様の理想を実現するために、まず僕自身が図面を作成しました。
はじめにスケッチを起こし、寸法を検討しながら詳細な図面へと落とし込んでいきます。
一度で「これで完璧」となるわけではありません。
大工さんや家具職人と現場で打ち合わせを重ねながら、細部の納まりやガラスの配置、フレームのラインなどを調整し、何度も図面を書き直しました。
仕上がりをイメージしながら、実際の空間とのバランスも考慮し、ミリ単位での調整を行います。


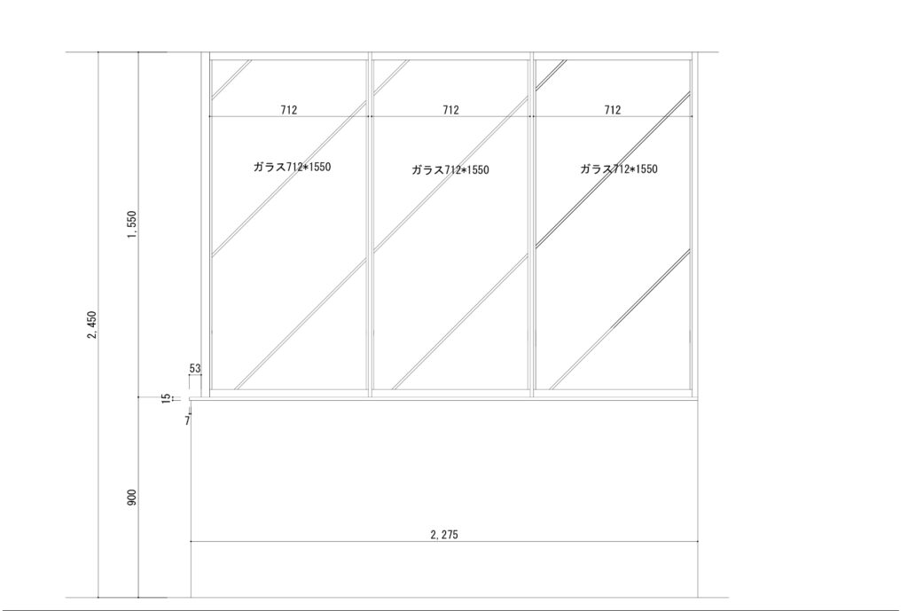
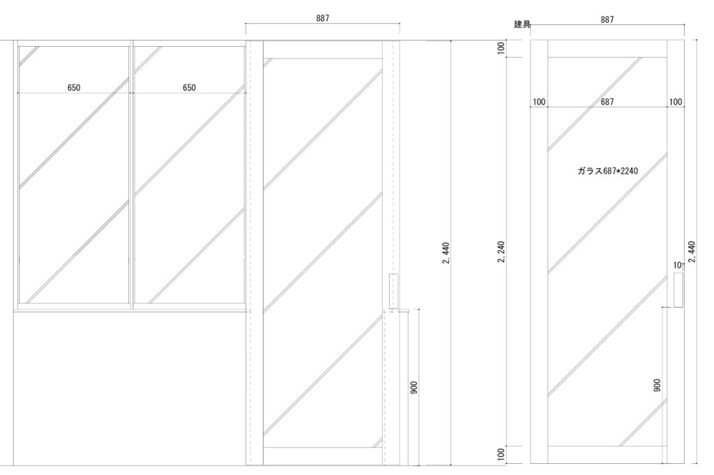
使用したのは「強化ガラス」と特注建具
階段の格子には、透明感と安全性を両立する強化ガラスを採用しました。
ガラスの厚みや取り付け方法にもこだわり、しっかりとした構造でありながら、空間を閉じない設計となっています。
ガラスの下部は腰壁でしっかりと立ち上げ、上部はアルミフレームとガラスで構成。
ガラス自体がデザインの一部として活きるよう、納まりも繊細に調整しました。
また、建具(引き戸)は家具職人の手による造作建具です。
設計段階から開閉のスムーズさや高さのバランス、フレームのラインを統一感あるものに仕上げるため、既製品ではなく完全オーダーで製作しました。

キッチンの面材と同色で塗装
造作の階段格子と建具は、キッチンと同じ面材カラーに合わせて塗装しました。
具体的には、キッチン面材の色味をベースにオリジナルの塗装色を調色し、建具とフレームすべてを統一。
これにより、LDK全体のデザインに一体感が生まれ、まるで元々のデザインの一部だったかのような仕上がりに。
こういった色の統一感は、空間全体の印象を大きく左右する要素です。
M様にも仕上がりをご覧いただいた際に「本当に完璧です」とお言葉をいただけて、非常にうれしい瞬間となりました。
デザインだけでなく、暮らしやすさも両立
デザイン的な美しさはもちろん、階段の格子には安全性・使いやすさ・掃除のしやすさも求められます。
- 開閉しやすい引き戸設計
- ゴミがたまりにくい下部腰壁
- 目線を邪魔しない開放的な間仕切り
- ガラスの反射で空間に奥行きが生まれる
見た目だけでなく、日常生活の中でストレスなく使える工夫を多数取り入れています。
機能と美しさのバランスがとれたこの階段格子は、まさに今回のリノベーションの“顔”とも言える存在になりました。
出来上がったときの喜びと達成感
この造作工事は、職人たちと密に連携しながら一つひとつ手を動かして完成させたものです。
出来上がった瞬間、正直なところ「やっと形になった」という安堵と、「想像以上に美しく仕上がった」という感動がありました。
何よりも、お客様からの「完璧です」という一言が、これまでの苦労を一瞬で吹き飛ばしてくれるほどのうれしさでした。
リノベーションは“希望を形にする仕事”
今回のようなオーダーメイドの造作は、まさに「お客様の想いを形にする」仕事です。
最初はイメージだったものが、打ち合わせを重ね、図面に起こされ、職人の手で実際に形になっていく―
その過程には、図面の線一本、色味の調整、納まりの工夫など、膨大な数の選択と判断が詰まっています。
G.CRAFTは、ただオーダー通りの工事をするのではなく、「その方の暮らし方」や「好きな空間の雰囲気」に寄り添いながら、設計から施工まで一貫してお手伝いさせていただいています。
最後に:今後の参考にしていただけたら
この階段格子は、今後の設計・リノベーションにおいても大きなヒントとなる事例だと思います。
- 壁で仕切るだけではない空間のつくり方
- 安全面とデザイン性を両立させる工夫
- キッチンとの色合わせによるトータルデザイン
これからリノベーションや新築をご検討の方にも、ぜひ参考にしていただきたいと思っています。
写真で見る完成形

ご相談はお気軽にどうぞ
G.CRAFTでは、住宅・マンションのリノベーション、店舗改装、造作家具・建具の製作など、幅広く対応しております。
「こんなことできる?」「ちょっと相談だけでも」
そんな段階でもかまいません。お気軽にご相談ください。